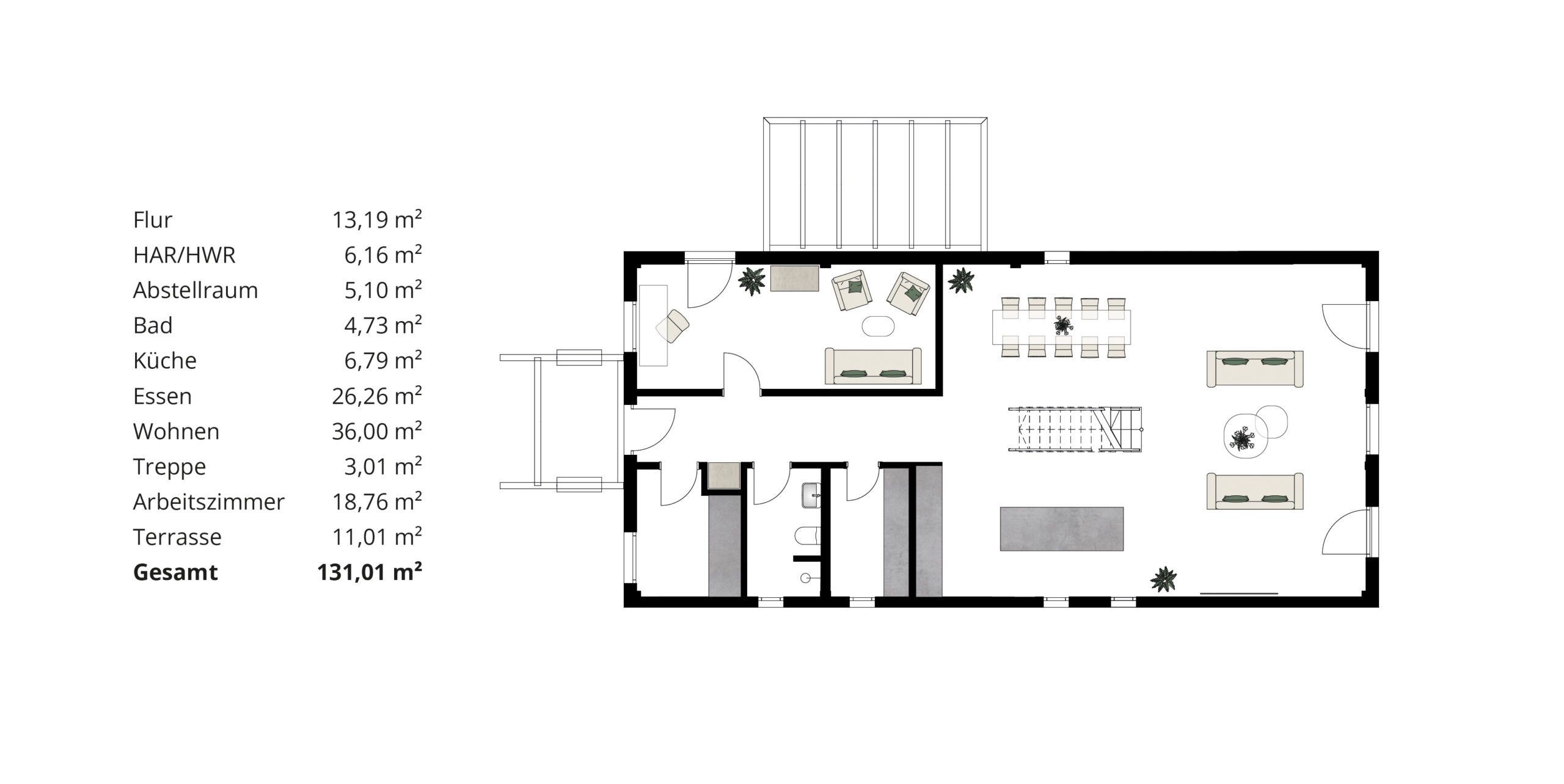
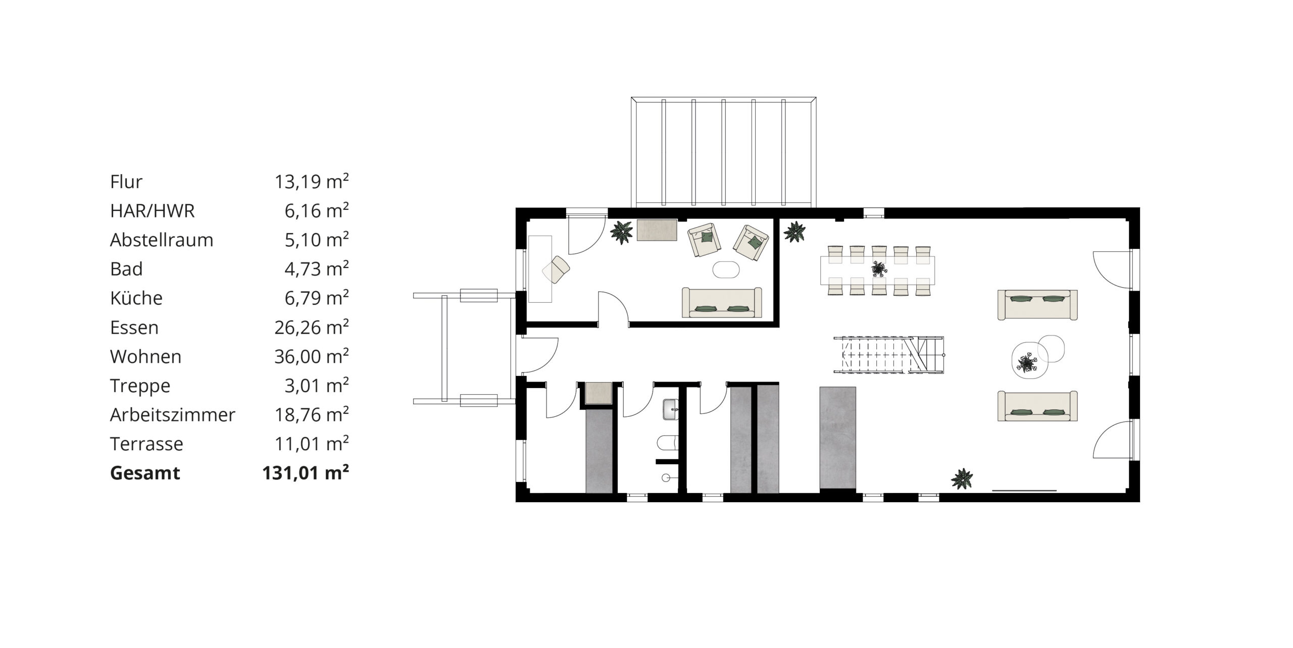
Mit seinem durchdachten und flächeneffizienten Grundriss schafft das GREEN STEEL HOME I Plus auf ca. 211 m² Raum für Ihren Wohntraum.
Für ein großzügiges Raumgefühl sind im Erdgeschoss die Küche sowie der Ess- und Wohnbereich offen gestaltet. Zusätzlich öffnet sich dieser Raum beeindruckend über zwei Etagen nach oben. Über die Treppe im Zentrum des Wohnraumes gelangen Sie in die privaten Rückzugsräume wie das Schlaf- und die Kinderzimmer.
Das GREEN STEEL HOME I Plus schafft haptische Räume durch ein Zusammenspiel von natürlichen und langlebigen Materialien, wie Holzböden und ökologische Anstriche. Die Pflanzbalkone im Obergeschoss bringen die Natur sogar ins Haus und schaffen eine beruhigende und lebendige Atmosphäre.
FAQ Stahlhaus
Wer ein Haus baut hat viele Fragen.
Unsere Antworten.
Wie langlebig ist das GREEN STEEL HOME I Plus ?
Das Bauprinzip des GREEN STEEL HOME I Plus hat sich seit vielen Jahren im großen Maßstab bewährt. Ein wesentlicher Punkt bei der Instandhaltung ist die Fassade eines Gebäudes. Durch die nahezu unverwüstliche Stahlfassade ist die Wartung auf einen minimalen Aufwand reduziert. Die Dachfläche ist als Flachdach ausgebildet, das mit einer einer speziell recycelbaren Folie mit Gewährleistung von 50 Jahren abgedeckt wird. Diese Folie ist ebenfalls nahezu wartungsfrei.
Ist das GREEN STEEL HOME I Plus komplett vorgeplant und konfiguriert?
Das GREEN STEEL HOME I Plus ist von der ersten Idee bis zum fertigen Haus komplett für Sie vorgedacht. Alle Komponenten sind durchdacht und greifen perfekt ineinander. Auch der Bau erfolgt aus einer Hand: Das GREEN STEEL HOME I Plus wird komplett von unseren eigenen Mitarbeitern gebaut. Deswegen dürfen Sie sicher sein, dass jedes Detail stimmt. Sie brauchen einfach nur einziehen!
Gibt es ein Musterhaus?
Ja! Kommen Sie uns besuchen und verschaffen Sie sich Ihren persönlichen Eindruck vor Ort:
Musterhaus GREEN STEEL HOME I Plus
Neubaugebiet Klanze Nord, Mühlenring 4, 38554 Weyhausen.
Besichtigungen sind nach Anmeldung unter
Telefon: 05121 8843215 oder Email: info@greensteelhome.de möglich.
Gern verabreden wir einen Termin mit Ihnen.
Highlights der Bauausstattung
• moderne Architektur in Form- und Farbgebung
• Offener Küchen-, Ess- und Wohnbereich
• Nachhaltige Baumaterialien
• Zukunftssichere Wärmeerzeugung unterstützt durch Photovoltaik
• Fenster u. Terrassentüren mit 3-Scheiben Isolierglas
• Grünes Geländer
• Echtholzböden in allen Zimmern
• Wand- und Deckenheizung
• Wohnungseingangstür als Sicherheitstür mit Mehrfachverriegelung
• großflächige Designbeläge
• Smart-Home-Verkabelung vorbereitet
• Separater Nebeneingang zur flexiblen Nutzung
Machen Sie den ersten Schritt
Gestalten Sie jetzt Ihr persönliches GREEN STEEL HOME I Plus
ab einem All.-Inkl.-Preis von 419.000 Euro*
Besuchen Sie unser Musterhaus!
Sie möchten unser Musterhaus besuchen oder benötigen weitere Informationen? Dann nehmen Sie Kontakt mit uns auf.
Musterhaus Anfahrt:
Neubaugebiet Klanze Nord
Mühlenring 4
38554 Weyhausen
Zufahrt über Laischeweg (gegenüber der Aral Tankstelle)
Besichtigungstermine nach Vereinbarung.
Kontakt
Green Steel Home GmbH
Bördestraße 13
31135 Hildesheim